下平行梳型托輥產品參數

V形梳型托輥產品參數

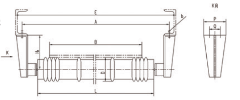
梳型托輥可分為上平行梳型托輥、下平行梳型托輥、V形梳型托輥。
我們公司專業生梳型托輥,梳型托輥上套有硬橡膠圈,對防止輸送帶跑偏和清掃有很大的作用!專用于輸送粘性物料的輸送機使用。
本公司產品主要優點:壽命長,節能性高
1、選用托輥無縫鋼管。
2、定制哈/瓦/洛的專業托軸軸承,使用壽命明顯增長,質地輕巧,操作方便;
3、高耐溫和低溫;能在零下40-120度的環境下工作。
4、耐腐蝕;能耐鹽、堿、酸,適應惡劣的工作環境;
5、優異的機械性能;強度高,韌性好,抗摔性強;
6、不粘結:表面光滑不粘物料,中空裝置能使帶沾物自行脫落;
7、經濟效益高,能降低維修工時等運行成本,提高經濟效益。
咨詢QQ:1210189900
還可以關注我們微信公眾號:sjssjx
0510-86179580
0510-68823303